|
这次要分享的案例来自——中国台湾省。这是一套坐标台南区四室一厅的住宅,当然这只是房子的原始格局。当地不算公摊面积,以“坪”为房屋面积的计量单位,换算成内地的平方米单位,大概是105㎡的使用面积。若在内地算上公摊,差不多算是一套140㎡的房子。(文:新秀/图片原创:木介空间设计)
▲屋内动图实景一览 因为压力太大!其次,这套房子只有两人居住,这对台湾夫妇把4卧爆改成1卧,把更多的空间给到公共区,让全屋更为宽敞大气,配合简约原木风格的装修效果,让人一进屋极度舒适,忍不住给大家晒晒!
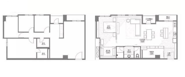
▲户型改造前后对比 房子的原始户型方正,但公共区面积不够大,其次四个卧室除了主卧,其他面积都非常狭小。优点是这套房子本身的承重墙不多,改造后尽可能地把空间全部打通,形成了超大超宽敞的共融式空间,其中卧室设计也是亮点,一起看看细节吧!
▲客厅 如今的客厅区是两个次卧室合并的结果,沙发背后的区域改造成了开放式的书房,再后方是开放式的厨房区、入户区,屋内采光通透效果得以最大化。
全屋的装修色调非常统一,白色和木色等比例搭配,木饰面电视背景墙,实木地板,包括家中的柜子也以原木色为主,配合明亮的光线,太温馨了!
没有电视柜、没有茶几,分别用粗犷简约的小木箱和懒人沙发代替,在搭配一组落地式的浅棕色皮质沙发,大气简约有质感,营造了非常舒适的温馨场面和慵懒气息,再配合全屋通透的采光和视觉效果,可以说让人一进屋极度舒适,一切的压力都得到了放松。
右侧靠窗打造了一排木质隔板镂空柜,这里可以替代茶几的置物功能,存放装饰品、随手件等等。
客厅顶面也是没有做吊顶的,无主灯设计,用均匀分布的明装筒灯代替,保留了最原始的层高,和建筑构造关系,简单干练。
▲书房
客厅的背后居中摆放一组办公书桌,可上网冲浪可看书写字。 因为空间足够大,左侧的过道直接随意的堆放着常用的书籍,也不必担心卫生不好打扫的问题,当地本身灰尘较少,其次家中有扫地机器人时常清洁卫生。
▲餐厨空间 书桌右侧门洞打开,可进入洗衣晾晒的阳台区。 背后视角拉近,同样是一组居中定制的吧台式餐桌,除了用餐功能也兼备西厨岛台,下面的橱柜也兼备储物功能,实用极了。岛台右侧进入关上露台,不过平时都用玻璃推拉门隔开,然后用白纱帘遮光。镜头右侧就是开放式的厨房,在台湾厨房大多以开放式为主,细节就不展示了。
▲主卧 电视背景墙背后是主卧区。 这里没有用到传统的平开门,而是用到了推拉门板,打开后可以让卧室和客厅达到通透效果,关上床头背板就能形成一个独立私密的空间,大气简约。
没有传统的床头设计,后期可以用抱枕代替床头靠背,靠感一样舒适而且更好打理。镜头右侧可以看到一个面积较大的开放式衣帽间。
内部用到了艾特格衣架打造充足收纳区,还可以根据需要自由组合。 储物方便,视觉舒适度也很强,存取物品一目了然,收纳能力也是MAX。
▲卫生间 卫生间打造了三分离模式,洗漱台居中摆放,定制台面底部镂空,摆放一个存取便利的储物小推车。其次镜柜的设计也是可以存放很多备用杂物的。左侧是独立的马桶区,右侧是独立淋浴房,使用起来非常方便。 |
