|
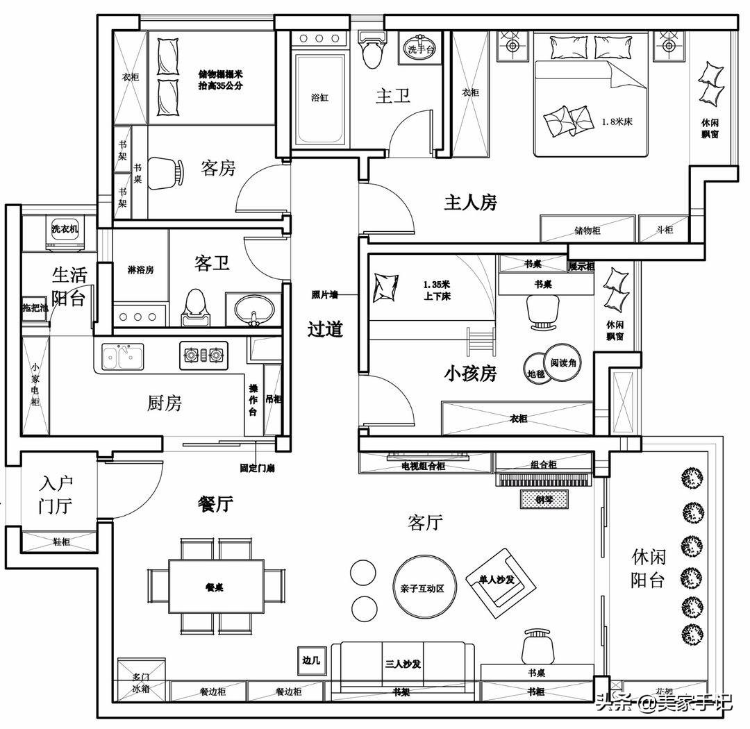
这是平面图,户型周正不说,而且结构上做到了动静分离、公私分区,加上双阳台的格局住着非常舒服。
入户是一个独立的门厅,右侧定制了一组顶天立地的鞋柜,选用无把手的柜门能弱化体积感,因而看着美观大方。细节方面,柜底虽然没有悬空,但是预留两层开放式的收纳鞋槽也不错,至少可以码放一些常穿鞋子,中间的话留空,放些诸如钥匙之类的小物件正好,总之整体功能非常强大。 (左侧背景墙没有拍到,如若设置了穿衣镜整理衣着以及安有挂放衣帽的挂钩,效果会更为人性化)
沿着入户进来再右转就是眼前的餐厅,布局很简单,直接摆放细腿的原木餐桌以及蓝黄两色的简约椅子就搞定了,前者让空间显得轻盈灵活,而且木质材料具有温润自然的属性,看着很舒服,后者的话,它的色调可以让空间显得更有活力。其它就是右侧的餐厅墙,为避免单调直接点缀了装饰画,再有就是对面的餐柜,考虑到生活中总有一些使用频次高的东西需要做到一目了然的拿取,就在免拉手的柜门基础上,预留了部分开放式的收纳区以及安装磨砂材质的玻璃柜门,加上右侧嵌入的冰箱,效果干净整洁,而且细节考虑得非常周到。
拉长视野,可以看到客厅的沙发墙,很多人喜欢直接刷漆然后点缀装饰画,但是本案业主不同,直接定制了一组有藏有露的高柜,然后下面摆放一款书桌以及双人的蓝色布艺沙发,这样美观大方的同时,利用率也高。
电视墙延续了沙发墙的风格以定制的柜子来装饰空间,这样就兼顾了美观和实用的双重效果。另外是这些藏书,由于业主喜好阅读,而且也想打造一个书香雅韵的环境让孩子在耳濡目染的环境下养成爱阅读爱学习的习惯,就在这一面也留有部分书柜。其它就是右下角的空间,未来的规划是摆放一台钢琴,不过现在没有添置,就先摆放着这么一组组装的收纳架。
梳理一下,这个是客厅全景,休闲阳台带来的优渥采光加上清新脱俗的配色以及化繁为简的装修,整个空间看着井井有条而且令人极度舒适。需要补充的是,业主没有买茶几,这样就能预留充足的活动空间给孩子自由嬉戏,而孩子大了,或是确有茶几的需求,后期再添置也不迟,所以这是一处充满弹性的布置。
左侧可以看到带有黑框玻璃门的厨房,由于设计师没有提供过多的细节图,这里就无法分享了,不过从平面图可知,晾晒衣物的生活阳台就在厨房。至于装修,以木色的简约柜门为主,搭配黑色的把手和灰色的墙砖等等,效果整洁时尚,而且使用体验感极佳。
一共三间房,这间是主卧,其中硬装延续了之前风格,这里就不多讲了,不过配色以及软装家具的选品都不错,当然床头两侧的吊灯以及主灯都极具装饰效果,看着十分迷人,右侧的话是用来休闲的飘窗,不得不说楼层高就是好,目之所及皆为风景,太美了。
另一面是推拉门衣柜以及原木材质的床头柜。
主卫面积不大,所以洗漱台比较小巧,不过还是从实用的角度出发安装了镜柜,满足一些洗漱用品的收纳问题不大,毕竟还有台盆下的浴室柜,另外柜子底部悬空,让空间显得轻盈了不少,其它就是中间的马桶以及左侧的浴缸,总之该有的功能一个不落。
相比较来说个人更喜欢儿童房,直接靠着墙角摆放高低床,这样就拥有了两张床位,如若来了二胎,或者孩子的朋友来做客等等,都有了一个临时应急的地方,还有,这样的布局还可以释放一部分空间布局衣柜以及设有小巧的桌椅作为活动区等等,难怪孩子喜欢极了。
第三间房是多功能房,之所以这么说在于它既可以作为临时客房、临时父母房以及书房都可以,而实现这一切全靠榻榻米结构的地台床,虽说直接将结构固定化了,但利用率却是出奇的高,比如地台床的两端都可以设计一体化的衣柜,加上床体之中的抽屉以及左侧的书桌工作区,功能特别强大。
细节。
最后是客卫,功能齐全不说,而且效果整洁时尚令人非常满意。以上就是我见过最干净的家,虽然不豪华不大气,但是这种拒绝过度的装修方式不仅接地气,而且窗明几净令人心生向往,大家觉得呢? 项目地址:广州 项目设计:胡狸胭脂设计 |

