|
收纳,是一个老话题。
琳琅满目的收纳神器与收纳方法躺在各种各样的文章里供君挑选,各位尽管秉承着“马了就是会了”的原则在其中穿梭,却也还是在不久后一边发出哀嚎——“收纳一周后家又恢复了原样,究竟有没有一劳永逸的收纳大法?!”一边失去了整理的动力、
其实在收纳是一种方法之前,它首先是一种思路,只有接纳和掌握这种思路,才能从根本上的“一劳永逸。”
而今天这个故事,就是由一位拥有神级收纳思路的女主人公打造的。
改造前
改造后
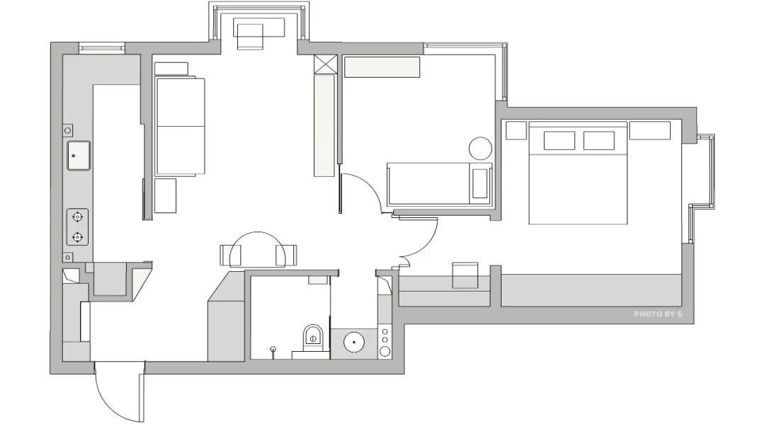
▲ 屋主:66 户型:2室 面积:67㎡ 花费:20W 坐标:北京-昌平
❶)餐厅——移出玄关,客厅餐厅重组为起居室; ❷)厨房——门洞改向,一字型变U型:冰箱位于厨房入口处,无论在厨房内外,拿取冰箱里的物品都是最近的;生活阳台纳入厨房,操作台面延长,储物空间也得到满足; ❸)卫生间——外扩40㎝,干湿分离; ❹)玄关——使用空间增加近一倍:餐厅移出后玄关功能独立,增加内置洗衣房; ❺)过道由——单向利用变双向:即是客厅餐厅分界线,又是交通空间; ❻)主卧——过道改为书房,主卧外扩变小套房。
玄关
很多朋友都认为玄关是一个没那么重要的区域,屋主却觉得它的重要性仅次于“金厨银卫”,功能、动线、收纳都很重要。
关于玄关,屋主事先思考了以下问题: ❶)回到家钥匙、衣服、鞋、包包放哪? ❷)外出随身物品放哪,出门不容易丢三落四,效率更高? ❸)没有杂物间,杂七杂八的工具五金放哪里?
▲【入户门】 入户大门不仅是一道安全防线,更是一块不可忽视的收纳空间,小户型一定要物尽其用: ❶)上排——口罩、布包、雨伞、钥匙等小件挂在入户门上,出门前拿取方便又不容易遗漏; ❷)下排——两根吸盘挂杆把鞋子挂起来,就省去了一个单独鞋架占用的空间,而且不进门不落地,减少灰尘泥土污染。
▲【综合收纳柜】开放置物区 ❶)抽屉上方——买回来的东西临时放在平台上,不用满地乱堆; ❷)抽屉右侧——比较窄比较矮,这里平时是换鞋凳,东西特别多的时候也可以临时作为置物平台 收纳空间: ❶)抽屉-日用小件——出门随身携带的纸巾、湿巾、眼镜、卡包,以及回家要用到的一次性酒精棉片、一次性鞋套、垃圾袋等 ❷)吊柜-月用囤货——拖地湿巾、纸巾、口罩囤货收纳在上面的吊柜里,方便补货
▲【综合收纳柜】正面视角 抽屉(日用品)、吊柜(月用囤货)、置物平台、换鞋凳、以及主角——两组高柜。
▲【综合收纳柜-工具柜】 柜门关闭干净清爽,柜门打开后却很震撼,中间这个高柜就是工具柜啦。 ❶)吸尘器:内部预留电源,在柜子里收纳加充电; ❷)五金工具:洞洞板收纳五金工具是一把好手,可以随意调整位置间距,工具挂起来也方便日常使用; ❸)工具箱玻璃胶等大件工具:收纳在抽屉下方的柜子里。
▲【综合收纳柜-鞋柜】 屋主不太习惯换季期衣服和鞋子放在一起,所以把鞋子安排在了玄关转角柜。
▲【衣物悬挂区】 入户门旁就近悬挂每天外出要穿的衣服。
▲【洗衣房】 ❶)洗衣机烘干机——屋主把洗衣房设置在了玄关另一侧(综合收纳柜对面)。因为卫生间比较小没地放洗衣机,而又不想安排在厨房和生活阳台,于是选择放在了玄关处。不仅空间宽敞,也更符合屋主的生活习惯:脏衣服进门直接脱下丢进洗衣机,不用穿行室内造成二次污染; ❷)洗衣液就近放在右侧柜子底部,洗衣片洗衣网挂在柜门上; ❸)次净衣柜——穿过但还不用洗的衣服,不能和干净衣服混放,需要一个专门区域收纳; ❹)顶柜-年用收纳柜——这组顶柜不仅高,而且比较深,不适合放小件囤货,所以用来收纳行李箱、节日装饰品等一年用一两次的大件杂物。
隐藏在柜子里的抽拉旋转镜,使用时拉出来,可以270°旋转,无论出门前在玄关,还是日常在客厅都可以照到。
客厅
客厅布局比较传统,沙发、茶几、电视柜,以及餐桌。 投影代替电视,平时一副挂画简单清爽,周末看电影放下幕布,比电视爽不要太多。
▲沐浴阳光的客厅
▲阴天的客厅
电视柜的抽屉里分类收纳药品、遥控器、游戏卡等杂物。
▲塞满零食的零食车
▲影音设备 屋主为了追求更完美的观影效果和其他娱乐设备,自己搭建了一套影音娱乐系统(APS、NAS、蓝光播放器、万能遥控器、Switch等),设备虽然很多很复杂,但可以做到一句话开启/切换/关闭某个娱乐模式,完全告别遥控器和手动开关。
屋主很喜欢这款布纹玻璃双层茶几,线条简约视觉通透,四个轮子方便移动,茶几移开客厅秒变运动空间。
屋主选择了比布艺沙发好打理的黑色皮沙发,原本有点担心白色空间不能驾驭这么大一块黑色,没想到其实还不错,呼应客厅里的黑色元素。
沙发墙后就是厨房了,新的厨房门洞位置让厨房硬凹出了U型。
厨房
厨房三大件正对厨房入口,左侧与墙面齐平的是嵌入式冰箱。屋主提醒灶台两侧一定要预留一点空间,她这里预留了30㎝,炒菜时临时放备菜(不和备菜区冲突)特别方便。
▲「调料收纳-月用囤货」 30㎝的操作空间下面其实是燃气表,因为这里不能做抽屉,所以屋主用来储存大桶油和调料囤货。
▲嵌入式冰箱 和独立冰箱相比,虽然容量小一 些功能少一些,但最无可替代的优势就是可以做到与空间、橱柜融为一体,没有缝隙没有卫生死角,也没有收纳死角,看上去非常舒适。
冰箱上方空间很大,可以用来收纳半年多的厨房用品囤货。
▲【操作区】 灶台右侧是操作区(75㎝)。为增加操作区面积,选了尺寸相对较小的燃气灶(75㎝)和大单槽(58㎝)。
【大单槽】 屋主认为空间挤一挤还是有的,没有必要为了追求超大水池牺牲操作空间,目前使用下来这个尺寸(内部尺寸:56×41㎝)的大单槽非常好用,屋主很喜欢这种直角的设计,相比圆润带弧度的水池,无论是水池内还是水池下的柜子里,一厘米浪费都没有。
▲「水池柜收纳」 屋主要求1㎝都不可以浪费,所以水池柜尺寸几乎卡到极限,不到56㎝的柜子里,除了大单槽,还塞进了垃圾处理器、净水机、前置过滤器,以及厨房必备清洁剂。
▲「调料收纳-日用」 90%的调料都放在位于灶台和操作台中间的拉篮里,这个位置备菜和烹饪时使用都很方便。
统一包装瓶不仅为了整齐好看,更是因为这种瓶子可以单手操作,调料瓶原包装一般都需要双手操作才能拧开,这种瓶子只需要一只手,做饭时效率大大提高了。
▲「调料收纳-日用」 另外10%调料放在灶台左侧开放格中,主要是固体类。
▲「吊柜收纳-日用」 操作区上方有两组吊柜,一组用来收纳烹饪工具,另外一组收纳面粉谷物糖等食材。 ❶)用下挂篮、置物架给柜子内部做分隔; ❷)上层使用带把手的收纳盒,不用梯子伸手就能够到; ❸)柜门装一个薄款收纳盒,常用小件收纳在这里方便查找。
靠近灶台的吊柜里主要收纳的是面粉和谷物,食材要与厨房工具分开放。
▲【小家电区】
▲【小家电区-台面日用部分】
▲「吊柜收纳」 小家电区的吊柜90%封闭10%开放:封闭柜子里收纳了小家电相关配件,从下层到上层按使用频率高低排列,开放格是每天做咖啡都要用的工具和杯子。
壁挂炉这里因为安装位置受限没法装柜门,屋主用68块钱定做了一个百叶窗帘,既能保证通风,又遮挡住了不美好。
▲【小家电区】 后面是下水管道不能封闭,所以屋主做了三层拉板抽,第一层是真空封口机,第二层是破壁机和电饭煲,最下面一层是米桶、洗碗粉。
米桶放在拉板抽也比原来放在柜子里好用很多,填米时不用再抱着大米桶起来蹲下了!
▲【转角柜-锅具收纳】 位于转角的地柜比较难利用,原来安装了小怪物拉篮,由于滑轨占用大量空间,实际使用率不到60%,只能放四个锅。于是屋主把拉篮拆掉,换成了带轮塑料盒,锅子竖着放,增容一倍多!
柜子里安装了感应灯带,找东西也有温暖的光。
▲【开放收纳】 厨房油烟大,为了减少家务量,屋主在设计之初就定下七分收纳三分开放的原则。因为过道比较窄(不到1m),为了保证空间宽敞方便活动,另一边没做任何柜体和隔板,但也不能浪费,屋主还是安装了挂杆和保鲜膜收纳盒。
餐厅
改造后的餐厅从玄关“请”进了客厅,正对厨房入口,方便传菜。
按照玄关的斜向通道设计,买了这款折叠后是斜向通道的延续,没有凸出的边边角角,三个人用餐没问题。
餐桌旁的梯形柜,和玄关洗衣房是一体的定制柜子,因为不规则不能做抽屉,后期我买了几个塑料抽屉,一样好用,主要用来收纳抽纸、餐巾纸、餐布、桌布等餐桌相关的囤货。
卫生间
卫生间门套是不锈钢定做的,金色门套和卫生间金色腰线条呼应。
▲【干区】 干区0.95×1.6m
一切都尽量不落地:入墙式水龙头、壁挂香皂盒、壁挂纸巾盒。
▲【干区收纳】 替换毛巾浴巾、护肤品囤货、纸品囤货收在柜子里。
▲【干区收纳】 化妆品、护肤品、吹风机等日常用品放在外面。
▲【湿区】1.45×0.95m 原本卫生间又黑又小,屋主改造后白色系的墙面地面视觉上干净清爽,金色腰线条是点睛之笔,“天窗”给暗卫引入光线。
马桶和淋浴在湿区,洗手台独立出来,“早高峰”期间可以效率最高(如厕、洗漱不冲突)。
浴室用置物架一直有个苦恼:水渍难清洁,有卫生死角,直到换上这款“快捷酒店同款沐浴瓶”,一切烦恼没有了!不仅比统一沐浴液瓶看上去还简洁清爽,而且现在特别方便清洁墙壁,顶部平台还能放小件洗面奶,不要太实用啦!
湿区门口右手边的黄铜玻璃柜是海淘回来的,里面放了香水和护肤乳,卫生间是香香的。
主卧
与纯白色的公共空间不同,屋主在主卧用了一点彩色,淡蓝色的墙壁、蓝色衣柜、白色百叶柔纱帘,特别适合夏季,一进这个房间就自动降温了。
屋主不太喜欢衣帽间,衣帽间内的交通空间一般是浪费掉的,所以在主卧定制了一整面墙顶天立地的大衣柜,交通空间即为和床之间的过道。
衣柜整体3.55×2.55m,顶柜和底柜是换季收纳区,中间部分为当季衣物,我和家属两人四季的衣服、家里的床品全部收纳进来,还塞进一个“家政区”,以及藏了一个空调。
▲换季衣物和床品
▲应季长款衣物
▲应季短款衣物
▲卧室专用家政用品区
衣柜内预留了电源,以及安装了感应灯带。
大衣柜在晚上还可以充当电影巨幕,一台便携投影仪放在床头,就能躺床上看120寸巨幕电影啦。
冬季的卧室会换上暖色系丝绒窗帘,视觉上增温。
书房
▲从主卧看向书房
屋主改造时将主卧门外推,把过道包进来改成书房,就变成了小套房。
整个书房1.8×1.8m,仅3㎡,屋主及其家属平时工作学习主要使用电脑和电纸书,所以收纳需求不高,以舒适度为重心。
书柜做成吊柜在书桌上方,书桌下一个小抽屉柜。
这扇门宽度只有1.1米,但被屋主做成子母门。原因在于:平时子门关闭不影响书房抽屉使用,如果是单开门,使用抽屉时就会和门扇冲突。
▲从客厅看向书房 儿童房
目前屋主家里没有小朋友,家人也不常来,目前次卧布置比较简单,一张床一个书桌一个柜子就够了。
次卧尝试了墨绿色,果然还是“浓妆艳抹”更宜人~
阳台
屋主家基本等于没有阳台~
客厅有一个凸出来的1.4×0.7m小空间(所谓的阳台),这是这个户型中屋主最不满意的地方,但装修时屋主把阳台窗户改造成了一整块,没有分隔的大落地窗成为这两年家里最舒心的地方。也是一种别样的美好。
支起小桌子,阳台再迷你,善于发现美,也是可以来一场“说走就走”的“露营”~
屋主说:
最庆幸的决定,就是没有把所有钱用来买房,而是“面积可以省,但装修不能”~ |
